15 Blofield Road, Brundall, Norwich, Norfolk, NR13 5NN

  • Unconditional Online Auction Sale
  • Guide Price* : £500,000 - £600,000 (plus fees)
  • Bedrooms: 7
  • Bathrooms: 7
  • Reception Rooms: 4

Pymm & Co Auctions are delighted to offer 15 BLOFIELD ROAD, BRUNDALL, NORFOLK, NR13 5NN LARGE BUILDING PLOT WITH FULL PLANNING CONSENT | PRIME LOCATION | OUTSTANDING SELF-BUILD OPPORTUNITY 6/7 BEDROOMS & BATHROOMS TOTALLING OVER 430 SQUARE METRES

Description

Pymm & Co Auctions are delighted to offer 15 BLOFIELD ROAD, BRUNDALL, NORFOLK, NR13 5NN

LARGE BUILDING PLOT WITH FULL PLANNING CONSENT | PRIME LOCATION | OUTSTANDING SELF-BUILD OPPORTUNITY

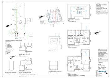
Nestled in one of Norfolk’s most sought-after residential areas, this very substantial building plot offers a rare and exceptional opportunity for self-builders or investors looking to create a prestigious family home in a highly desirable Norfolk village. Positioned on Blofield Road—a location renowned for its blend of countryside peace and excellent local amenities—the plot benefits from full planning consent for an impressive 6/7-bedroom detached home totalling over 430 square metres with double garage, presenting an exciting prospect to bring a bespoke luxury build to life.

The approved plans provide for a spacious and thoughtfully designed residence, ideal for modern family living. The proposed layout offers flexibility for up to seven bedrooms & bathrooms, allowing for home offices, guest suites, or multi-generational living. Generous internal proportions, contemporary design features, and the inclusion of garages ensure the completed home will deliver both practicality and prestige. With full planning already secured, buyers can move forward with confidence, avoiding lengthy delays and enabling immediate progression to the construction phase.

Brundall itself is one of Norfolk’s most popular villages, known for its welcoming community, excellent transport links, and access to stunning rural and riverside surroundings. Situated just six miles east of Norwich, the village offers quick routes into the city by road or from Brundall railway station, making it an ideal location for commuters. The nearby Norfolk Broads provide an unrivalled lifestyle for boating and nature enthusiasts, while local shops, schools, pubs, and leisure facilities make day-to-day life convenient and enjoyable.

The plot is generously sized, offering ample space for gardens, parking, and landscaping to complement the new dwelling. Whether your vision is for a striking contemporary build, a timeless traditional home, or something uniquely personal, this site provides the scope and setting to create a standout property tailored to individual needs and tastes. Self-builders will particularly appreciate the freedom and potential this plot affords, supported by its premier location and existing planning approval.

Properties of this calibre in Brundall are seldom available, particularly those with full consent already in place. This auction represents an outstanding chance to secure a valuable and versatile development opportunity in a location where demand for high-quality homes remains consistently strong. Whether you are an experienced developer or embarking on your dream self-build project, 15 Blofield Road promises exceptional potential.

Early viewing is strongly recommended to appreciate the scale of the plot, the quality of the surrounding area, and the exceptional opportunity on offer. This is your chance to create a landmark home in a prime Norfolk setting—ready for development and brimming with future value.

A unique and exciting proposition—prime plot, prime location, full consent. Do not miss this opportunity.

Services:
Interested parties are requested to make their own enquiries to the relevant authorities as to the availability of services.

Important Notice to Prospective Buyers:
We draw your attention to the Special Conditions of Sale within the Legal Pack, referring to other charges in addition to the purchase price which may become payable. Such costs may include Search Fees, reimbursement of Sellers costs and Legal Fees, and Transfer Fees amongst others.

Additional Fees:
Buyer's Premium - £4,200 inc VAT payable on exchange of contracts.

Administration Charge - 0.3% inc VAT of the purchase price, subject to a minimum of £1,200 inc VAT, payable on exchange of contracts.

Disbursements - Please see the legal pack for any disbursements listed that may become payable by the purchaser on completion.

Council Tax Band

E

* Generally speaking Guide Prices are provided as an indication of each seller's minimum expectation, i.e. 'The Reserve'. They are not necessarily figures which a property will sell for and may change at any time prior to the auction. Virtually every property will be offered subject to a Reserve (a figure below which the Auctioneer cannot sell the property during the auction) which we expect will be set within the Guide Range or no more than 10% above a single figure Guide.

Loading the bidding panel...

Agreement Documents

Legal Documents

Log in to view legal documents

Related Documents

Virtual Tour

Take the tour here

Make an Enquiry

Submit an enquiry and someone will be in contact shortly.

 
*  
*  
*
*
*

Share