access through unlocked gate
Pymm & Co Auctions Are Delighted To Offer a Prime Building Plot with Full Planning Permission.
Pheasant Walk, South Walsham, NR13 6ER
An exceptional opportunity to acquire a ready-to-develop building plot with full planning consent for a spacious three-bedroom detached bungalow with a garage, located in the the highly sought-after village of South Walsham. Perfectly situated within the picturesque Norfolk Broads, this plot presents an ideal prospect for builders, self-builders, or investors looking for a swift start in a thriving area.
The Plot
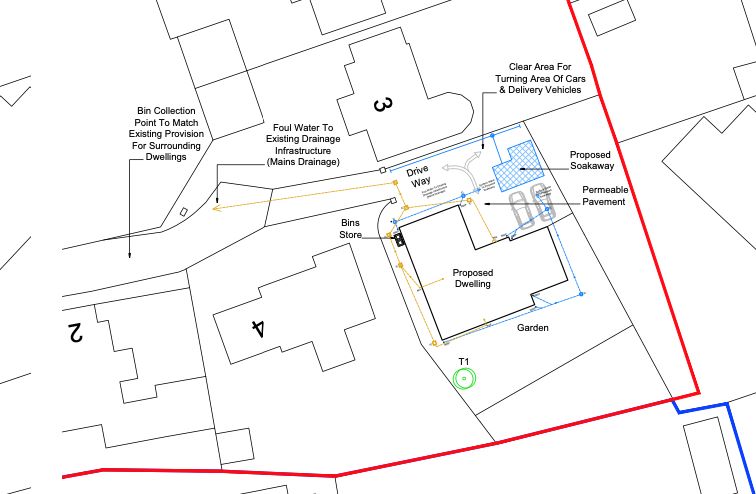
Occupying a generous and well-positioned parcel of land on the peaceful cul-de-sac of Pheasant Walk, the site is cleared and level, making it immediately ready for construction. Planning permission has been granted for a stylish detached bungalow, designed to blend beautifully with the character of the local area while providing modern, efficient living. Drawings and designs are available to view at the Broadland Council planning portal.
The Approved Plans
The approved scheme comprises a thoughtfully designed three-bedroom bungalow, offering spacious and well-proportioned accommodation ideal for family living.
Location
Pheasant Walk is a quiet residential road within walking distance of the village centre. South Walsham is one of Norfolk’s most desirable Broadland villages, known for its beautiful countryside, friendly community, and close proximity to the Norfolk Broads National Park. The village offers a local pub, tearoom, village hall, and the much-loved Fairhaven Woodland and Water Garden.
The nearby towns of Acle, Brundall and Blofield offer a wider range of amenities including supermarkets, schools, health services, and railway stations with regular links to Norwich and Great Yarmouth. The fine city of Norwich is only a 20-minute drive away, offering extensive shopping, entertainment, and cultural attractions.
Development Potential
With full planning consent already in place and all necessary documentation available, this is a “ready to go” project. Whether you’re a developer seeking a fast turnaround opportunity or a private individual looking to build a forever home in one of Norfolk’s finest locations, this plot ticks all the boxes.
Viewing: Site can be viewed externally at any time, but permission must be granted by us at Pymm & Co first. Further details and planning documents available upon request.
Don’t miss your chance to secure a rare building plot in one of the Norfolk Broads’ most sought-after villages.
Services:
Interested parties are requested to make their own enquiries to the relevant authorities as to the availability of services.
Important Notice to Prospective Buyers:
We draw your attention to the Special Conditions of Sale within the Legal Pack, referring to other charges in addition to the purchase price which may become payable. Such costs may include Search Fees, reimbursement of Sellers costs and Legal Fees, and Transfer Fees amongst others.
Additional Fees:
Buyer's Premium - £2,820 inc VAT payable on exchange of contracts.
Administration Charge - 0.3% inc VAT of the purchase price, subject to a minimum of £1,200 inc VAT, payable on exchange of contracts.
Disbursements - Please see the legal pack for any disbursements listed that may become payable by the purchaser on completion.
* Generally speaking Guide Prices are provided as an indication of each seller's minimum expectation, i.e. 'The Reserve'. They are not necessarily figures which a property will sell for and may change at any time prior to the auction. Virtually every property will be offered subject to a Reserve (a figure below which the Auctioneer cannot sell the property during the auction) which we expect will be set within the Guide Range or no more than 10% above a single figure Guide.
Submit an enquiry and someone will be in contact shortly.
By setting a proxy bid, the system will automatically bid on your behalf to maintain your position as the highest bidder, up to your proxy bid amount. If you are outbid, you will be notified via email so you can opt to increase your bid if you so choose.
If two of more users place identical bids, the bid that was placed first takes precedence, and this includes proxy bids.
Another bidder placed an automatic proxy bid greater or equal to the bid you have just placed. You will need to bid again to stand a chance of winning.