Land, Field Maple Road, Watton, IP25 6GA

  • Unconditional Online Sale

Pymm & Co Auctions to offer an exciting opportunity to acquire a residential development site with full planning permission granted for the construction of four detached dwellings, and excess residual land with future potential value (shown in pic 2 and in auction legal pack) in the well-connected and sought-after town of Watton, Norfolk.

Description

Pymm & Co Auctions are delighted to offer a Prime Residential Development Opportunity

Land at Field Maple Road, Watton, Norfolk, IP25 6GA

An exciting opportunity to acquire a residential development site with full planning permission granted for the construction of four detached dwellings and excess residual land with future potential value (shown in pic 2 and auction legal pack) in the well-connected and sought-after town of Watton, Norfolk.

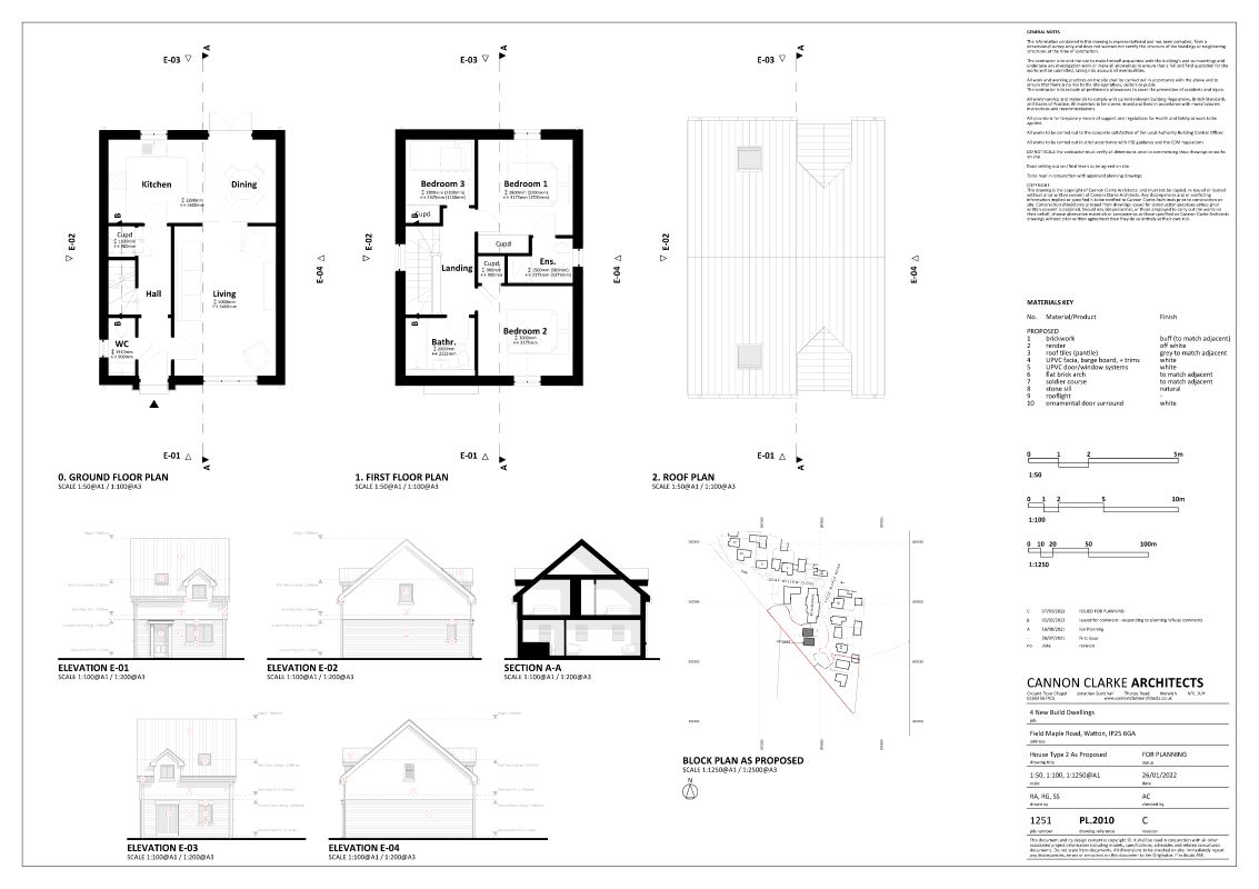
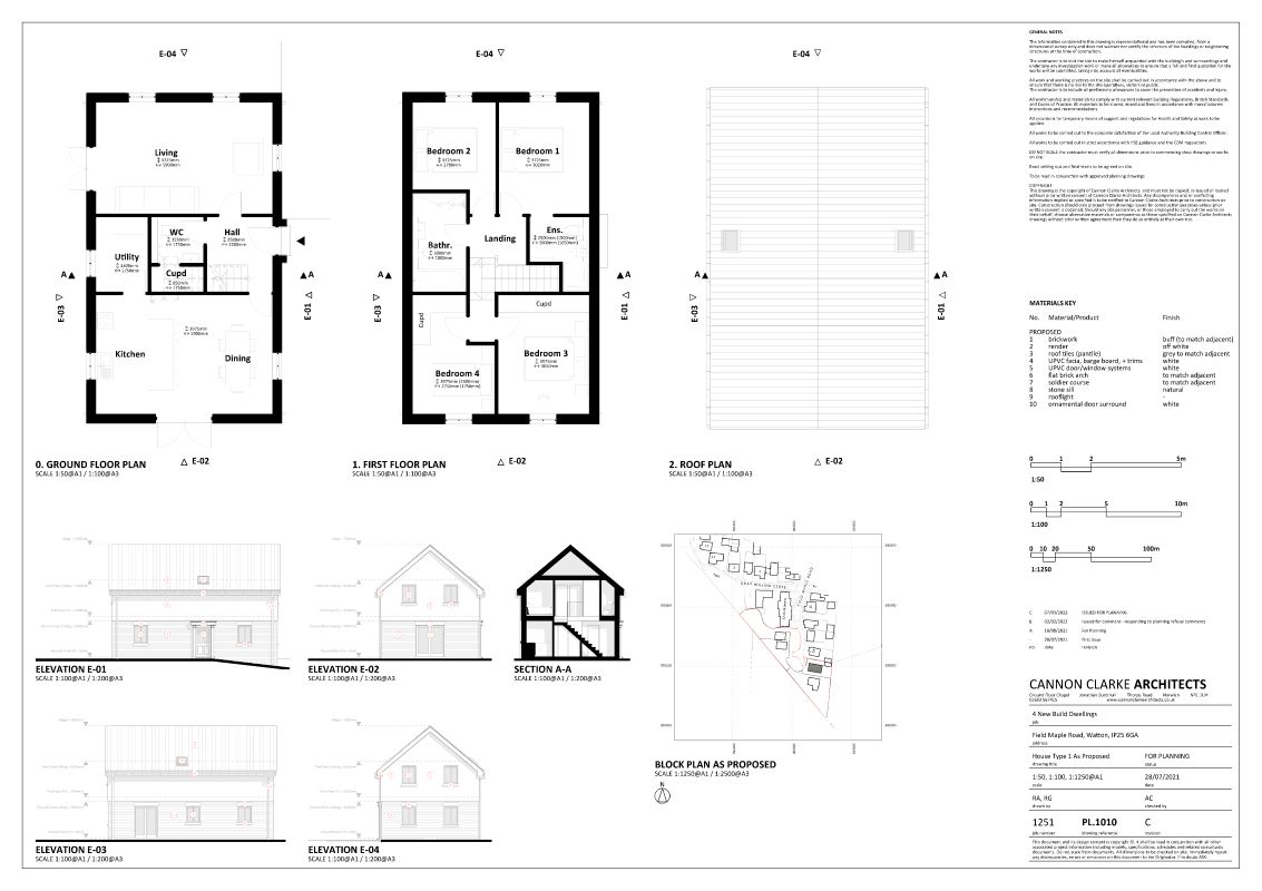
The approved plans allow for the erection of two 4-bedroom detached houses and two 3-bedroom detached houses, all positioned on generous plots within a desirable residential area. This development represents a ready-to-go project for housebuilders and investors alike as no CIL or Nutrient Neutrality required, offering strong resale or rental potential in a thriving local market.

Key Features:
Full planning consent
Site for 4 detached dwellings
Extra residual land (future potential value) shown in (pic 2) and in auction legal pack
No CIL required
No Nutrient Neutrality required
2 x 4-bedroom detached homes
2 x 3-bedroom detached homes
Excellent access and frontage onto Field Maple Road
Located in a well-established and popular residential area
Freehold title
Ideal for developers, small builders, or investors

The site is situated on Field Maple Road, a quiet and attractive residential street in Watton, a growing market town in Norfolk with a wide range of amenities, including supermarkets, primary and secondary schools, independent shops, and leisure facilities. The location is well connected by road, with easy access to Thetford, Attleborough, and Norwich, making it ideal for commuting professionals and families.

Watton continues to be a focus for new housing demand, with sustained interest from buyers seeking quality homes in semi-rural locations. The current planning consent provides for a well-balanced mix of family-sized properties that align with local market needs, offering excellent prospects for profitable resale or long-term rental.

Planning Information:
Full planning permission has been granted by the local authority for the proposed development. Copies of the planning documents, decision notice, approved plans, and any associated reports are available on this listing or upon request can be accessed via the local council’s planning portal.

Tenure:
Freehold

Auction Details:
This lot will be offered by public auction, unless sold prior. Interested parties are strongly encouraged to register early and conduct due diligence ahead of the auction date.

A prime small-scale development opportunity with planning permission already in place, and future value residual land – ideal for immediate commencement. Don’t miss this chance to acquire a highly marketable site in a popular Norfolk location.

For further information, planning documents, or legal packs, please contact the Pymm & Co office on 001603 305805.

Services:
Interested parties are requested to make their own enquiries to the relevant authorities as to the availability of services.

Viewing:
The site can be viewed from the roadside during daylight hours. For safety reasons, internal access is not permitted without prior arrangement.

Important Notice to Prospective Buyers:
We draw your attention to the Special Conditions of Sale within the Legal Pack, referring to other charges in addition to the purchase price which may become payable. Such costs may include Search Fees, reimbursement of Sellers costs and Legal Fees, and Transfer Fees amongst others.

* Generally speaking Guide Prices are provided as an indication of each seller's minimum expectation, i.e. 'The Reserve'. They are not necessarily figures which a property will sell for and may change at any time prior to the auction. Virtually every property will be offered subject to a Reserve (a figure below which the Auctioneer cannot sell the property during the auction) which we expect will be set within the Guide Range or no more than 10% above a single figure Guide.

Loading the bidding panel...

Agreement Documents

Related Documents

Make an Enquiry

Submit an enquiry and someone will be in contact shortly.

 
*  
*  
*
*
*

Share